Après :
Avant :
Rénovation  de bureaux, 86 m2
Design : Elvire M
rénovation totale
BUREAUX ,
rénovation rue Chapon,
Paris III.
Direction de projet pour Kerwoods : création cuisine, salle à manger, espaces de bureau. Mobilier entièrement sur mesure.
Architectes : Elemento
Management de projet pour  l'équipe  du Comptoir Général, reprise des univers décoratifs. ( Gros oeuvre et mise aux normes :
PIN-BIZOUARD architectes)
Avant :
Après :
BUREAUX DE PARTNERS,
rue d'Anjou,
Paris VIII.
Création de dossier de Permis de Construire : conception d'un étage supplémentaire par décaissement. Création escaliers, ascenseur, dégagements, selon normes PMR et ERP.
Mise aux normes des wcs du Mc Donald de Denfert Rochereau.
Création de visuels 3ds de 16 appartements destinés à la location, pour le Groupe hôtelier Algonquin.
Création d'une cascade et
d'un salon berbère en mezzanine :
Rénovation de la salle "de bal" et du "bateau pirate" :
Création d'un bar "Riviera" :
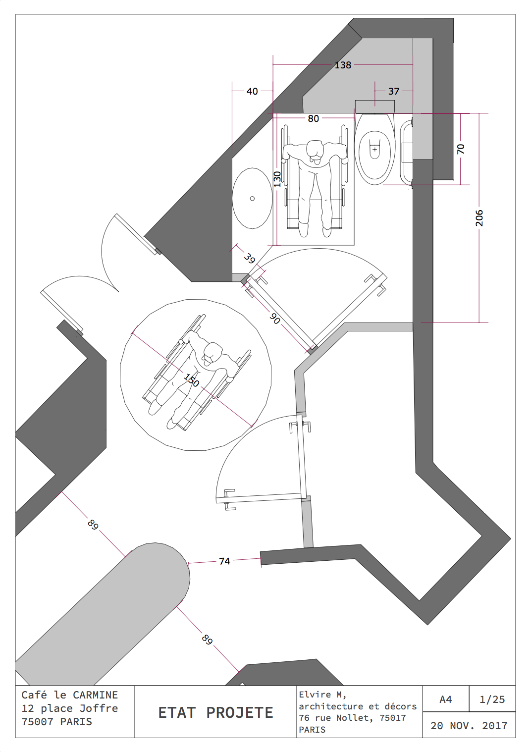
Mise aux normes PMR des wcs.
RESTAURANT LE CARMINE, PARIS VII.
BAR " LE COMPTOIR GÉNÉRAL",
PARIS X :
PROJETS COMMERCIAUX
TRANSFORMATION D'UNE USINE EN STUDIOS D'ENREGISTREMENT ET BUREAUX,
MONTREUIL.
MC DONALD, PARIS XIV 
CHALETS A VAL THORENS
Renovation d'un nodal et de wcs dans une société de production de films publicitaires, Parix X
Conception d'une salle de restaurant dans l'atelier de la cour d'honneur de l'ENSBA, pour la Taste Galerie. Projet abandonné par l'ENSBA.
RESTAURANT À L'ECOLE NATIONALE DES BEAUX ARTS,
PARIS
SALLE DE MONTAGE CINEMA,
PARIS X
ELVIRE M. atelier d'architecture et décors
À PROPOS 
MISSIONS 
BOOK
CV 
CONTACT 
DESIGN MOBILIER
cinéma publicité événementiel 
Commercial 
Privé 
DECORS EN IMAGES 
ARCHITECTURE EN IMAGES